
Explore our thoughtfully designed senior living floor plans tailored for comfort, safety, and style. Whether you need the freedom of independent living or the support of assisted living, we have a layout that fits. Each residence is designed to feel like home, with modern amenities and the support you need to thrive in our welcoming community.

540 Sq. Ft.
| Room | Size (W × L) |
|---|---|
| Bedroom | 13' x 11' |
| Living | 16' x 13' |
| Dining | 8' x 10' |

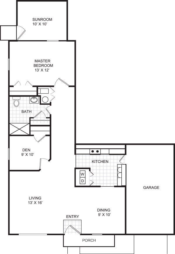
878-900 Sq. Ft.
| Room | Size (W × L) |
|---|---|
| Bedroom | 13' x 12' |
| Living | 13' x 16' |
| Dining | 9' x 10' |
| Den | 9' x 10' |
| Sunroom | 10' x 10' |

950 Sq. Ft.
| Room | Size (W × L) |
|---|---|
| Bedroom 1 | 12' x 13' |
| Bedroom 2 | 10' x 10' |
| Living | 13' x 17' |
| Dining | 13' x 10' |
| Sunroom | 10' x 10' |

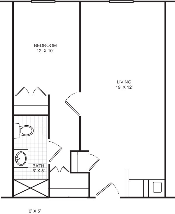
420 Sq. Ft.
| Room | Size (W × L) |
|---|---|
| Bedroom | 12' x 10' |
| Living | 19' x 12' |
| Bath | 6' x 5' |
*No furnishings provided. All dimensions and square footage are approximate and are used for illustration purposes only.